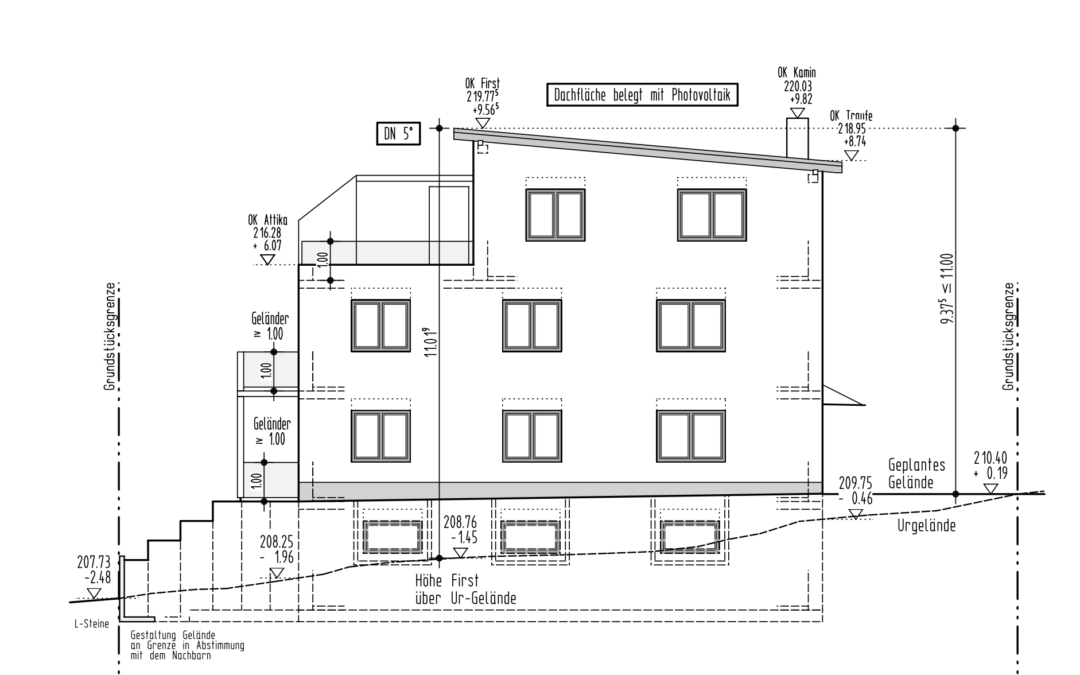
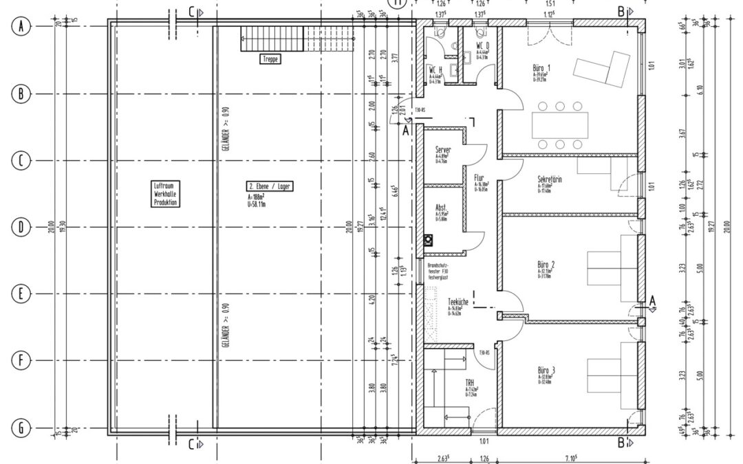
Neubau eines Mehrfamilienwohnhauses

Neubau eines Mehrfamilienwohnhauses

Eine hervorragende Investitionsmöglichkeit für zukünftige Bewohner und Anleger. Mit unserem Fokus auf Qualität, Nachhaltigkeit und modernem Design streben wir danach, ein Wohnprojekt zu schaffen, das die Erwartungen übertrifft und eine erstklassige Lebensqualität...